На этой роскошной вилле в Абу-Даби живет почетный король Хуан Карлос I

На этой роскошной вилле в Абу-Даби живет почетный король Хуан Карлос I
На этой роскошной вилле в Абу-Даби живет почетный король Хуан Карлос I

Хуан Карлос I живет в этом эксклюзивном особняке на острове Нурай. Спокойная жизнь почетного короля Абу-Даби разворачивается в этом доме площадью 1700 м2, стоимость которого составляет 11 000 000 евро..

картина
картина

Знаете ли вы, что виллу можно арендовать именно для того, чтобы провести отпуск? В Booking у вас есть различные варианты проживания на курорте Zaya Nurai Island.

король Оскар

86.00 $

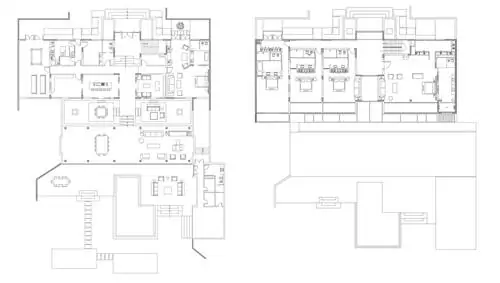
У нас есть доступ к планам дома Хуана Карлоса I в Абу-Даби. Это роскошная вилла, расположенная на двух этажах. Дом имеет выход к частному пляжу и огромную террасу с пейзажным бассейном и зоной отдыха с обеденной зоной на открытом воздухе.

Хуан Карлос и планы дома на роскошной вилле в Абу-Даби на острове Нурай
Хуан Карлос и планы дома на роскошной вилле в Абу-Даби на острове Нурай
Дом почетного короля Хуана Карлоса I в Абу-Даби на курорте на острове Нурай с бассейном и частным пляжем
Дом почетного короля Хуана Карлоса I в Абу-Даби на курорте на острове Нурай с бассейном и частным пляжем

Хуан Карлос I уже два года живет в этом роскошном особняке, где он наслаждается прекрасным видом на море и завидным естественным освещением.

Дом почетного короля Хуана Карлоса I в Абу-Даби на курорте Нурай Айленд
Дом почетного короля Хуана Карлоса I в Абу-Даби на курорте Нурай Айленд

Дом почетного короля имеет шесть спален, ванные комнаты, гостиные с разными столовыми, две кухни и даже вертолетную площадку, хотя находится всего в 15 минутах езды на лодке из Абу-Даби.

На первом этаже находится огромная гостиная с несколькими зонами отдыха и очень оригинальная столовая, расположенная на небольшом плавучем острове. Также есть аквазона, с хаммамом и сауной, из которой можно выйти на пляж.

Весь дом построен из благородных материалов, где царят мрамор и деревянные полы. Дом полностью застеклен, включая перила лестницы. Хуана Карлоса I обычно не видят, но в его распоряжении есть все премиальные услуги курорта.

В комплексе Zaya Nurai Island есть аквапарк, множество водных развлечений - от кайтсерфинга до виндсерфинга - а также большой спа-центр, зоны для детей и, конечно же, места для занятий спортом, с тренажерным залом и персональные тренеры и инструкторы по йоге.