Приют на севере

Приют на севере
Приют на севере

Уже с улицы ощутима обильная доза очарования, которая окружает этот северный дом, задуманный для семейного отдыха его владельцев. Неожиданное наследство дальнего родственника передало в его руки этот прекрасный дом, 100% сельский и со многими возможностями, хотя и в, к сожалению, ветхом состоянии. При первой оценке собственности было решено спланировать серьезную реформу, чтобы привести ее в соответствие с потребностями ее новых владельцев.

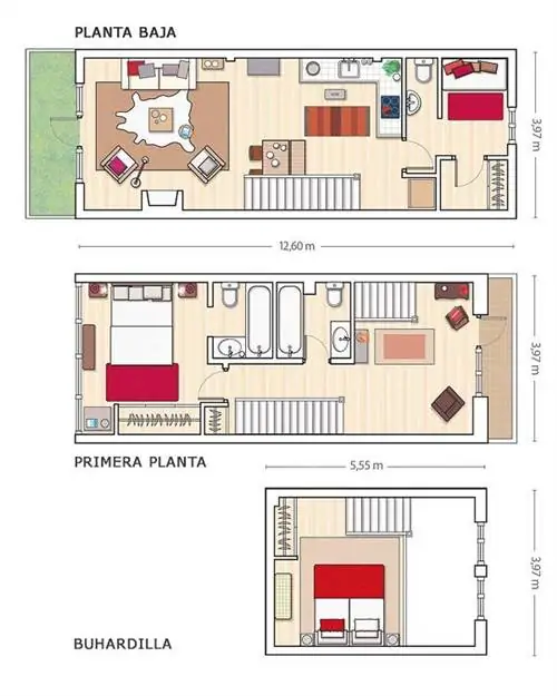
После работ поражает ноу-хау владельцев и их хороший вкус, что привело к светлым интерьерам, несмотря на почти полное отсутствие окон, и череде общих комнат, разделенных на три уровня. Первоначальное здание с традиционным деревянным фасадом с балконом наверху и крыльцом внизу стало отличной отправной точкой для нового строительства, которое теперь он представляет собой закрытый фасад, окрашенный в белый цвет и оснащенный большими окнами, которые освещают весь интерьер Новое полезное пространство дома разделено на три этажа; тот, что ниже, предназначен для гостиной, столовой и кухни, расположенных на одном открытом пространстве.

На этом же этаже, рядом с кухней, дверь ведет в спальню со встроенной ванной комнатой. Первый этаж отведен под хозяйскую спальню, особенно поражающую своим уютом. Ванная комната, расположенная внутри комнаты, отделена только низкими стенами на средней высоте, что позволяет проникать естественному свету. На этом же этаже есть большой холл, из которого лестница ведет на небольшой чердак, где установлена третья спальня с двумя кроватями.

Отремонтированный деревенский дом

Растение, Имущество, Дверь, Дом, Дом, Недвижимость, Здание, Жилой район, Вазон, Светильник,
Растение, Имущество, Дверь, Дом, Дом, Недвижимость, Здание, Жилой район, Вазон, Светильник,

Уже с улицы ощутима обильная доза очарования, которая окружает этот северный дом, задуманный для семейного отдыха его владельцев…

Очень теплые интерьеры

Комната, Дизайн интерьера, Мебель, Стена, Дом, Диван, Дизайн интерьера, Гостиная, Потолок, Светильник,
Комната, Дизайн интерьера, Мебель, Стена, Дом, Диван, Дизайн интерьера, Гостиная, Потолок, Светильник,

Климат, почти всегда прохладный, в этой местности побуждал владельцев выбирать аксессуары из удобных тканей, либо из шерсти, либо из длинных волос, что делало бы обстановку более гостеприимной. Диван Гастона и Даниэлы. Подушки от Maison de Vacances, Jardin D'Ulysse и одеяло от Zara Home. Журнальный столик от Lou & Hernández. Деревянный табурет на трех ножках от La Europea.

Зона отдыха с камином

Комната, Дерево, Окно, Дизайн интерьера, Пол, Дом, Пол, Горшок, Стена, Дизайн интерьера,
Комната, Дерево, Окно, Дизайн интерьера, Пол, Дом, Пол, Горшок, Стена, Дизайн интерьера,

Во время реформы система отопления была обновлена, но камин сохранился, чтобы сохранить очарование сидения у хорошего огня зимними вечерами. Кресла из растительного волокна от Almazen. Подушки от Maison de Vacances. Торшеры и настольные лампы от Ideas Luz. Ковер из кожи Икея. Аксессуары от Lou & Hernández.

Собственная столовая

Комната, Лестницы, Дизайн интерьера, Таблица, Мебель, Этаж, Главная, Потолок, Дизайн интерьера, Лиственных пород,
Комната, Лестницы, Дизайн интерьера, Таблица, Мебель, Этаж, Главная, Потолок, Дизайн интерьера, Лиственных пород,

Оставлять свободный проход на кухню было необходимо; поэтому столовая располагалась под лестницей, пристроенной к стене. Результат фантастический благодаря оригинальности мебели, отделанной деревом и зеленым цветом морской волны. Белые подсвечники от Point à la Ligne. Серые и розовые миски, чашки и шаль от Zara Home. Подушка цвета фуксии и серого от Maison de Vacances.

Гостиная, столовая и кухня делят пространство

Дизайн интерьера, Комната, Мебель, Стол, Потолок, Дизайн интерьера, Главная, Светильник, Персик, Фоторамка,
Дизайн интерьера, Комната, Мебель, Стол, Потолок, Дизайн интерьера, Главная, Светильник, Персик, Фоторамка,

Ключом к тому, чтобы максимально использовать счетчики, было отказаться от перегородок в местах общего пользования; именно мебель определяет функции каждой среды. Таким образом, гостиная, столовая и кухня делят пространство; все в полной гармонии. Комод, расположенный между гостиной и столовой, от El Siglo.

Кухня - очень функциональное пространство

Комната, Этаж, Дизайн интерьера, Пол, Потолок, Кухня, Светильник, Крупная бытовая техника, Шкаф, Кухонный прибор,
Комната, Этаж, Дизайн интерьера, Пол, Потолок, Кухня, Светильник, Крупная бытовая техника, Шкаф, Кухонный прибор,

Отсутствие высокой мебели на кухне помогло лучше ее интегрировать. Одну из стен украшает только открытая решетчатая полка. Техника Бош, Балай, Мепамса. Картина Карлоса Арриаги. Аксессуары от Lou & Hernández и кухонные полотенца от Zara Home.

Мебель как раньше

Комната, Красный, Белый, Дизайн интерьера, Столешница, Кухня, Дизайн интерьера, Краснодеревщик, Стеллажи, Дом,
Комната, Красный, Белый, Дизайн интерьера, Столешница, Кухня, Дизайн интерьера, Краснодеревщик, Стеллажи, Дом,

В том же духе, что и остальная часть дома, кухня была выбрана с сильным деревенским оттенком. Он сделан на заказ и со встроенной мебелью, отделкой в зеленых и белых тонах, с деревянной столешницей и плиткой, имитирующей модели прошлого века. Кухонные аксессуары в продаже в Lou & Hernández.

Дилер предоставляет складские помещения

Комната, Дизайн интерьера, Этаж, Дерево, Настил, Дом, Ящик, Комод, Стена, Дом,
Комната, Дизайн интерьера, Этаж, Дерево, Настил, Дом, Ящик, Комод, Стена, Дом,

Комод в раздатке, от El Siglo. Под лестницей корзина от Los Peñotes и шаль от Zara Home. Рядом со шкафом, столом и зеркалом от El Siglo. В ванной полотенцесушитель в виде оленей от Zara Home и полотенца от Textura.

Очаровательная главная спальня

Комната, Дизайн интерьера, Текстиль, Пол, Постельное белье, Потолок, Дом, Постельные принадлежности, Стена, Дизайн интерьера,
Комната, Дизайн интерьера, Текстиль, Пол, Постельное белье, Потолок, Дом, Постельные принадлежности, Стена, Дизайн интерьера,

Белые, кремовые и коричневые тона преобладают в качестве основы в главной спальне и помогают создать спокойную атмосферу с умными оттенками темно-красного цвета. Красная дорожка, Ганседо. Одеяло и квадранты от Textura. Шерстяные одеяла и подушки от Jardin D'Ulysse. Месилья из Эль-Сигло; на нем картина Вероники Виджанде. Лампа от Ideas Luz.

Вторая антикварная мебель

Комната, Дизайн интерьера, Текстиль, Пол, Стена, Стол, Пол, Дизайн интерьера, Дом, Постельное белье,
Комната, Дизайн интерьера, Текстиль, Пол, Стена, Стол, Пол, Дизайн интерьера, Дом, Постельное белье,

Реставрация старой мебели и выбор новой с таким же внешним видом способствует абсолютной интеграции всех предметов, создавая гармоничную и хорошо сбалансированную обстановку.

Спальня в мансарде

Кровать, Комната, Дизайн интерьера, Недвижимость, Постельные принадлежности, Текстиль, Красный, Спальня, Стена, Простыня,
Кровать, Комната, Дизайн интерьера, Недвижимость, Постельные принадлежности, Текстиль, Красный, Спальня, Стена, Простыня,

Это небольшое пространство, открытое в холл на первом этаже, было преобразовано в очаровательную спальню с двуспальной кроватью, над которой возвышаются два эффектных старинных изголовья. Столы из Эль Сигло. Flexo от Ideas Luz. Картина Карлоса Арриаги. постельное белье, текстура. Одеяло в виде восьмерки из Jardin D’Ulysse.

Очень светлая ванная комната

Комната, Дизайн интерьера, Белый, Стекло, Дизайн интерьера, Фиолетовый, Светильник, Дом, Дом, Серый,
Комната, Дизайн интерьера, Белый, Стекло, Дизайн интерьера, Фиолетовый, Светильник, Дом, Дом, Серый,

Вуд - главный герой в ванной комнате; цельный и натуральный, но всегда окрашенный в белый цвет.

КАРТА И ИДЕИ

Линия, План, Схема, Параллель, Прямоугольник, Диаграмма, Квадрат, План этажа, Карта, Чертеж,
Линия, План, Схема, Параллель, Прямоугольник, Диаграмма, Квадрат, План этажа, Карта, Чертеж,

Материалы играют ключевую роль в повышении четкости. От пола из мореной сосны до потолочных балок или стен, покрытых плиткой на кухне и выкрашенных в остальном, они были покрыты белым. Светоотражающий тон по преимуществу.

Замещение стены дома окном стало основным источником света для всего интерьера дома. Ключом к достижению этого стало распределение помещений без перегородок и выбор мебели со светлым дизайном и белой отделкой.