Семейный дом в скандинавском стиле

Семейный дом в скандинавском стиле
Семейный дом в скандинавском стиле

Если бы нам нужно было найти этот дом на карте, у нас вполне мог бы возникнуть соблазн разместить его где-нибудь в скандинавских странах. Дизайн интерьера, основанный на использовании дерева светлых тонов в отделке и мебели и нейтральных тонах, напоминает основы дизайна эти страны. Тем не менее, именно в Сьюдад-Реаль эта квартира была отремонтирована ее владельцами, парой архитекторов, отвечающих за адаптацию ее традиционной планировки.

Первоначальный дистрибутив, разделенный и статичный, превратился в открытые и просторные комнаты,которые обеспечивают более гибкое использование, поскольку владельцы иногда проводят деловые встречи дома. Мебель с четкими линиями, спроектированная своими руками, универсальна и гармонирует с деревянным и белым интерьером.

По мере роста семьи дом постепенно преображался присутствием детей. Это превратило двойное обращение в игру, ширину коридора в импровизированную картинную галерею, а передвижной стол, встроенный в кухонный бар, в входную дверь, эксклюзивную для его размеров.

Эти конструктивные решения, поначалу кажущиеся неудобными для семьи с детьми, оказались удачными. Реформа усилила яркую индивидуальность этой квартиры, где уникальные детали делают обстановку более яркой.

Идеальная пара для гостиной

Комната, Дизайн интерьера, Дерево, Этаж, Пол, Главная, Мебель, Дизайн интерьера, Потолок, Гостиная,
Комната, Дизайн интерьера, Дерево, Этаж, Пол, Главная, Мебель, Дизайн интерьера, Потолок, Гостиная,

Березовая древесина и белизна стен образуют идеальный тандем, уступающий место свету. Окружающая среда воспринимается как живая и динамичная благодаря аксессуарам и наличию элементов дизайна, которые в нужной степени улучшают дизайн интерьера.

Обеденный стол Il Volo от Ricardo Blumer производства Alias Design. Пластиковые стулья братьев Имс производства Vitra. Стульчик для кормления фирмы Stokke.

Основная стена

Дизайн интерьера, Комната, Пол, Пол, Гостиная, Стена, Дом, Диван, Стол, Дизайн интерьера,
Дизайн интерьера, Комната, Пол, Пол, Гостиная, Стена, Дом, Диван, Стол, Дизайн интерьера,

В гостиной ниша обрамляет диван. Здесь он использовался как структурный ресурс и подчеркивает большую картину работы Мон Монтойя. Основание было обложено березовой доской. Каркас, края проема и деревянная полка создают оптическую игру прямых линий и объемов.

Диван, La Oca. Светильники: настенные светильники модели Tolomeo от Artemide и потолочные светильники из дерева, модель Coderch, распространяемые Vinçon. Ковер и подушки из Батавии. На столе: пепельницы из Лос-Анджелеса. Студия.

Общая комната

Этаж, Настил, Комната, Дизайн интерьера, Стена, Светильник, Дверь, Плитка, Фанера, Светильник,
Этаж, Настил, Комната, Дизайн интерьера, Стена, Светильник, Дверь, Плитка, Фанера, Светильник,

Зал переходит в коридор, который действует как распределитель в разные комнаты. Две стены были выкрашены в глубокий сине-серый цвет, гармонирующий с ковром на полу. На заднем плане лист коллекции Музея дизайна Vitra с фотографиями легендарных стульев фирмы. С одной стороны оригинальная композиция из фигурных полок.

Вид с кухни

Сервировочная посуда, Комната, Дизайн интерьера, Керамика, Фарфор, Миксер, Дизайн интерьера, Дом, Миска,
Сервировочная посуда, Комната, Дизайн интерьера, Керамика, Фарфор, Миксер, Дизайн интерьера, Дом, Миска,

Простота - вот критерий реформы, проведенной архитекторами Sarabia + García del Castillo. Он избегает декоративности, чтобы украшение выражало себя через аксессуары и дизайнерскую мебель.

Распределить место

Комната, Дизайн интерьера, Этаж, Стол, Мебель, Стена, Потолок, Пол, Дом, Диван,
Комната, Дизайн интерьера, Этаж, Стол, Мебель, Стена, Потолок, Пол, Дом, Диван,

В ходе реформы были внесены существенные структурные изменения, чтобы среды могли сообщаться или становиться независимыми по мере необходимости. Большие раздвижные панели, открытые ниши и четкие перегородки организуют и распределяют пространство. Напольное покрытие от Weitzer Parkett. Перегородка, отделяющая гостиную от кухни, покрыта шифером с защитным лаком.

Изысканные детали

Дерево, Комната, Дизайн интерьера, Столешница, Этаж, Стол, Пол, Кухня, Деревянный настил, Лиственных пород,
Дерево, Комната, Дизайн интерьера, Столешница, Этаж, Стол, Пол, Кухня, Деревянный настил, Лиственных пород,

Из гостиной фасад, покрытый сланцем, обрамляет кухню, открывающуюся в комнату как еще одну общую комнату. Вкус владельцев - пары архитекторов - к дизайну и функциональности можно увидеть в деталях, таких как съемный стол, встроенный под столешницу. Он идеально подходит для быстрого перекуса. Кухонная мебель из серии "Лак" из Икеи. Столешница из березовой фанеры, как и стол, работа архитекторов.

Легкая ванна

Дерево, Дизайн интерьера, Комната, Абажур, Стол, Этаж, Мебель, Лампа, Светильник, Стекло,
Дерево, Дизайн интерьера, Комната, Абажур, Стол, Этаж, Мебель, Лампа, Светильник, Стекло,

Яркость проникает через большое окно, одетое в световую завесу, функция которой состоит исключительно в фильтрации естественного света. В идеальном расположении и балансе ничего не остается и не недостает. Лампы РН 4/3, от фирмы Louis Poulsen. Вазы из Батавии.

Лампы парами

Дерево, Комната, Стеклянная бутылка, Дизайн интерьера, Бутылка, Стена, Стол, Бутылка вина, Мебель, Напиток,
Дерево, Комната, Стеклянная бутылка, Дизайн интерьера, Бутылка, Стена, Стол, Бутылка вина, Мебель, Напиток,

В этом доме потолочные светильники висят по два. Идеальное решение, когда стол длинный или просто как эстетический элемент.

Личное пространство

Комната, Дерево, Дизайн интерьера, Текстиль, Стена, Мебель, Пол, Белье, Дом, Пол,
Комната, Дерево, Дизайн интерьера, Текстиль, Стена, Мебель, Пол, Белье, Дом, Пол,

Это выражение более чем когда-либо имеет смысл в спальне, поскольку и кровать, и изголовье, спроектированные архитекторами, сделаны из березы. Простота подчеркивает свою значимость прямыми линиями, чистыми поверхностями, аксессуарами и тканями без каких-либо изысков. Настенные бра от Ikea.

Мрамор и дерево в ванной

Пол, Сантехника, Настил, Комната, Дизайн интерьера, Стена, Плитка, Потолок, Коснитесь, Светильник,
Пол, Сантехника, Настил, Комната, Дизайн интерьера, Стена, Плитка, Потолок, Коснитесь, Светильник,

В ванной душевая зона покрыта крупноформатными кусками мрамора Macael, которые переходят в выступающую столешницу. К ней крепятся две раковины со встроенным в стену смесителем. Смесители: в душе Element от Roca и в раковинах Axor Uno от Hansgrohe. Вешалка для полотенец от Roca.

Детская спальня

Дерево, Комната, Дизайн интерьера, Этаж, Настил, Лиственных пород, Стена, Мебель, Деревянный настил, Потолок,
Дерево, Комната, Дизайн интерьера, Этаж, Настил, Лиственных пород, Стена, Мебель, Деревянный настил, Потолок,

В детской спальне хозяева наложили на нее свой личный штамп, чтобы она адаптировалась к потребностям и распорядку дня двух детей. Учебная зона, решенная большим сплошным письменным столом, располагалась под окном. Колыбель, Леандер.

Спальня для двоих

Дерево, Комната, Дизайн интерьера, Этаж, Напольное покрытие, Дом, Мебель, Стена, Гостиная, Дизайн интерьера,
Дерево, Комната, Дизайн интерьера, Этаж, Напольное покрытие, Дом, Мебель, Стена, Гостиная, Дизайн интерьера,

На противоположной стороне кабинета стоят кровати, поддерживаемые деревянным цоколем, защищающим стену. Стол и белая кровать, дизайн архитекторов. Рулонные шторы Бандалюкс. Стулья 3103 от Арне Якобсена производства Фрица Хансена. Деревянный торшер с белым абажуром, модель TMM, от Miguel Milá, в Santa & Cole.

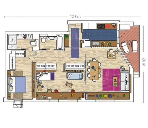
План и детали реформы

План, Схема, Параллель, Прямоугольник, Диаграмма, План этажа, Чертеж, Карта, Квадрат,
План, Схема, Параллель, Прямоугольник, Диаграмма, План этажа, Чертеж, Карта, Квадрат,

- Цель состояла в том, чтобы унифицировать материалы. Пол, двери и даже большая часть мебели сделаны из березового дерева. Благодаря чистому белому цвету стен достигается потеря ясности и яркости. Максимальная амплитуда!

- Дизайн интерьера выражает изысканность и эксклюзивность,с оригинальной мебелью, спроектированной архитекторами из березового дерева, и аксессуарами, которые являются иконами дизайна, в основном светильниками.