В какой из этих 3 квартир вы бы остановились?

В какой из этих 3 квартир вы бы остановились?
В какой из этих 3 квартир вы бы остановились?

Аренда или продажа квартиры в Мадриде становится все более сложной и сложной задачей, поскольку широкий спектр предложений делает конкуренцию выше, и, следовательно, что владельцы должны с изобретательностью встречать новые требования к эстетическим и функциональным качествам домов

Поэтому очень важно выйти из зоны комфорта и осмелиться спроектировать индивидуальное пространство, рассказывающее историю Что-то, что команда дизайнеров интерьеров Egue и Сета применила это на практике в этих трех квартирах в одном доме Какой из них вы предпочитаете?

НОМЕР 1: БОТАНИЧЕСКИЙ ШИК

A фестиваль натуральных, землистых и растительных цветов и текстур, варьирующийся от песчаных нейтральных до более прохладных зеленых, тоже пройти через апельсины и золото, чтобы привлечь внимание к определенному углу или комнате.

Ботаническая шикарная квартира в Мадриде
Ботаническая шикарная квартира в Мадриде
Ботаническая шикарная квартира в Мадриде
Ботаническая шикарная квартира в Мадриде
Ботаническая шикарная квартира в Мадриде
Ботаническая шикарная квартира в Мадриде

Но помимо зелени, украшающей ботанические литографии, текстильные узоры декоративных подушек или мятный оттенок стены; также зеленые по духу овощные волокна, выбранные для сидения в столовой; журнальный столик и покрытие пуфа цвета экрю; бамбук изголовья кровати в комнате, который сочетается с плетением фасадов прикроватных тумбочек; и все текстильные изделия, от льна до хлопка и ковров

Ботаническая шикарная квартира в Мадриде
Ботаническая шикарная квартира в Мадриде
Ботаническая шикарная квартира в Мадриде
Ботаническая шикарная квартира в Мадриде
Ботаническая шикарная квартира в Мадриде
Ботаническая шикарная квартира в Мадриде

Чтобы отойти от чересчур деревенского стиля, лепные и приподнятые плинтусы белого цвета в сочетании с дверями с зеркальными панелями и архитектурно-декоративным освещением способствуют мягкие и изысканные пространства.

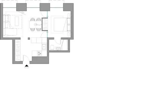
План планировки квартиры
План планировки квартиры

НОМЕР 2: BRIT BLUE

Вдохновленный английским стилем, дизайн этой квартиры идет гораздо дальше и изящно сочетает в себе состаренную кожу, бархат, дерево и честер с темно-синим фоном; некоторые открытые кирпичные стены, которые удаляются от промышленного воздуха; рисунки карт, рыб и собак с вкраплениями растений, зеркал, осветительных и декоративных деталей золотом…

Дизайн квартиры от Egue и Seta
Дизайн квартиры от Egue и Seta
Дизайн квартиры от Egue и Seta
Дизайн квартиры от Egue и Seta
Дизайн квартиры от Egue и Seta
Дизайн квартиры от Egue и Seta
Дизайн квартиры от Egue и Seta
Дизайн квартиры от Egue и Seta
Дизайн квартиры от Egue и Seta
Дизайн квартиры от Egue и Seta

И дело в том, что в этом доме контрасты - хлеб насущный, поэтому обе спальни пропагандируют разную эстетику В первой преобладает аквамариновый тон; и второй, с темно-синим, где обои объединяют интересный рисунок на стене изголовья

Дизайн квартиры от Egue и Seta
Дизайн квартиры от Egue и Seta
Дизайн квартиры от Egue и Seta
Дизайн квартиры от Egue и Seta
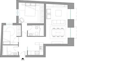
План планировки квартиры
План планировки квартиры

ВЫПУСК 3: ОРГАНИЧЕСКИЙ ДЕЛЮКС

Можете ли вы подойти к декоративной роскоши с более органичной и менее зеленой точки зрения? Кажется, да, и эта квартира доказывает это. Пространство, где прожилки дерева и мрамора переплетаются с золотыми и каменными структурами; где равномерная мягкость бархата гармонирует с органично вдохновленными графическими узорами в виде ракушек или лепестков; и где, кроме того, можно отдохнуть под укрытием из мягкого и теплого текстиля.

квартира с дизайном egue y seta
квартира с дизайном egue y seta
Дизайн квартиры от Egue и Seta
Дизайн квартиры от Egue и Seta
Дизайн квартиры от Egue и Seta
Дизайн квартиры от Egue и Seta

В спальне к персидскому ковру, по которому приятно ходить босиком, идет льняная кровать. с меловым горохом, золотыми полосками и зелеными плащами.

Дизайн квартиры от Egue и Seta
Дизайн квартиры от Egue и Seta
План планировки квартиры
План планировки квартиры

А вам какой больше нравится?